Загородный дом Hi224&SPA.

Проект загородного дома Hi224&SPA — 224 м², 2 этажа, бассейн, СПА

Архитектура

Жилой дом со SPA-комплексом включая бассейн, парную, хамам и спорт зал это тренд набирающий все большую популярность в частном домостроении.

О проекте

  • Площадь - 224м2
  • Количество комнат - 5 комнат
  • Этажность - 2 этажа
  • Бассейн, хамам, баня, спорт зал. Проектирование и строительство HiDom.

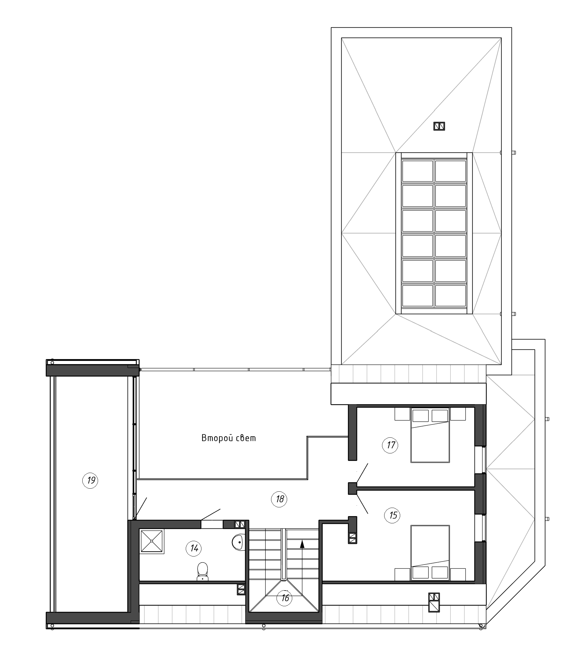
За счет скатной кровли над жилым блоком визуально компактный дом вмещает на втором этаже полноценные жилые комнаты с санузлом, балконом и вторым светом над кухней-гостиной.

Hi224 & SPA помимо объединения функций жилого дома и SPA-комплекса сочетает в себе и два экстерьерных стиля: современный с плоской кровлей и брутальный барнхаус с огромным остеклением, переходящим в кровлю над кухней гостиной.

Планировка

1 этаж
-

1. Гостиная- 38.8м2

2. Хоз. помещение- 11.5м2

3. Постирочная- 5.1м2

4. Лестница- 5.5м2

5. Санузел- 2.9м2

6. Раздевалка- 5.1м2

7. Котельная- 10.4м2

8. Коридор- 12.0м2

9. Хамам- 7.0м2

10. Сауна- 7.1м2

11. Бассейн- 50.5м2

12. Спортзал- 12.8м2

13. Терраса- 8.4м2

Итого:- 177.1м2

2 этаж
+

Дизайн-проект

Дизайн-проект DS224 ind.

Похожие решения.

Загородный дом Hi217 ind.
217m2, 5 комнат, 1 этаж
Загородный дом Hi203&SPA
203m2, 4 комнаты, 1 этаж
Загородный дом Hi153
153m2, 2 комнаты, 2 этажа