Загородный дом Hi217 ind.

Загородный дом Hi217 ind — 217 м², 1 этаж, терраса, Москва

Архитектура

Уютный двухэтажный дом со вторым светом и большой террасой для постоянного проживания или дачного отдыха с большой компанией! Первый этаж при своих компактных размерах вмещает в себя кухню- гостиную со вторым светом, три жилые комнаты, технические помещения и даже гараж.

О проекте

  • Площадь - 217м2
  • Количество комнат - 5 комнат
  • Этажность - 1 этаж

Двускатная кровля с фальцем задаёт основной силуэт дома, а отделка стен деревом и сланцем идеально вписывается в лесное окружение участка.

Второй этаж выполнен в виде антресоли - с него открывается вид на гостиную и террасу через панорамное остекление, а небольшая односкатная кукушка позволяет использовать дополнительную площадь.

Сочетание металла, дерева и камня - это без проигрышная смесь и характер.

Натуральное дерево в отделке фасада задает основной стиль и философию.

Когда дом выглядит и современно и одновременно по-домашнему уютно.

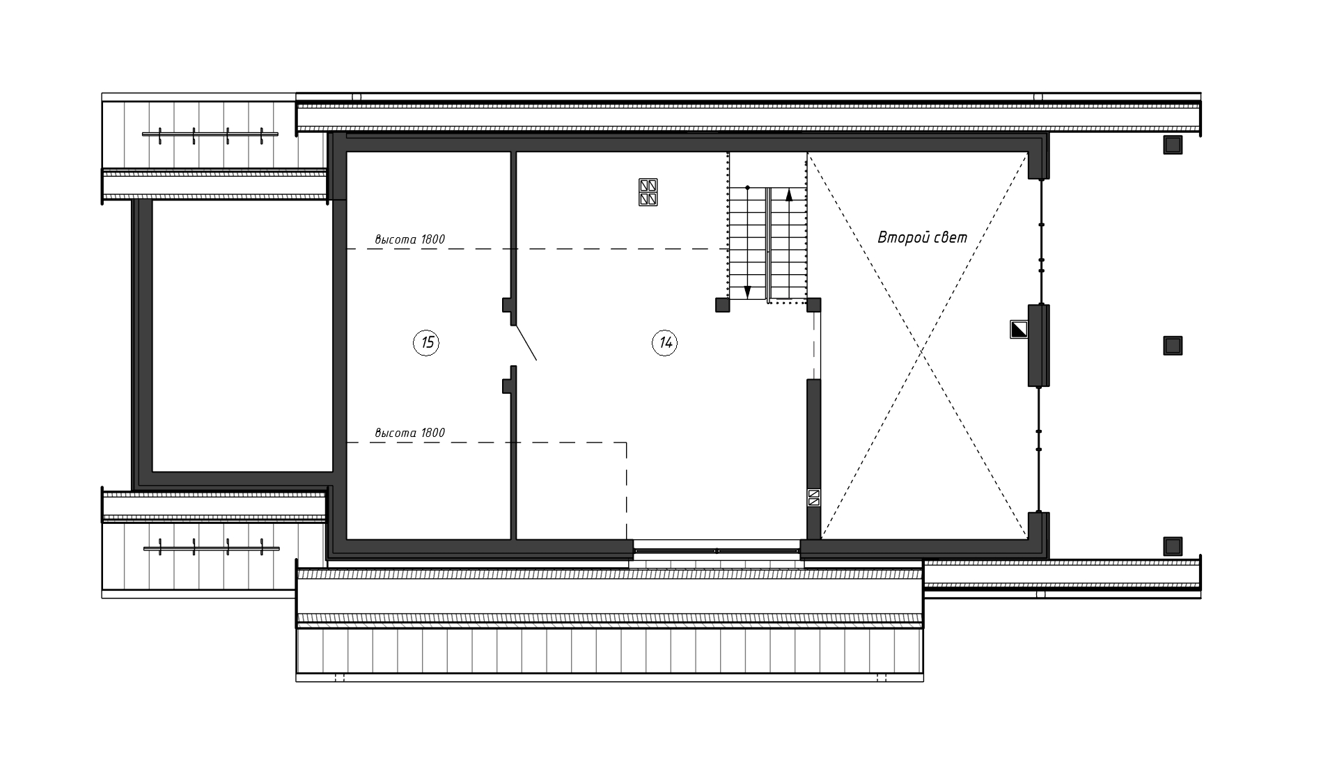
Планировка

1 этаж
-

1. Прихожая- 5.3м2

2. Лапомойка- 2.2м2

3. Спальня- 12.8м2

4. Спальня- 15.4м2

5. Санузел- 4.5м2

6. Спальня- 14.0м2

7. Санузел- 2.5м2

8. Котельная- 7.8м2

9. Кухня-гостиная- 45.5м2

10. Кладовая- 1.6м2

11. Коридор- 9.1м2

12. Терраса- 17.7м2

13. Гараж- 28.4м2

Итого:- 166.8м2

мансардный этаж
+

Похожие решения.

Загородный дом Hi172
172m2, 5 комнат, 1 этаж
Загородный дом Hi258
258m2, 5 комнат, 1 этаж
Загородный дом Hi182 ind.
182m2, 5 комнат, 1 этаж
Загородный дом Hi176
176m2, 5 комнат, 1 этаж