Загородный дом Hi238&SPA

Проект загородного дома Hi238&SPA — 238 м², 1 этаж, терраса

Архитектура

Одноэтажный дом с отделкой из белой клинкерной плитки в окружении зелени смотрится максимально эффектно! В композиции фасадов выделяется высокая центральная часть кухни-гостиной, а по бокам от нее разместились навес для автомобиля и крытая терраса. Рядом с прихожей расположена просторная кухня-гостиная с окнами в пол и выходом на террасу. В отдельную жилую зону сгруппированы две детских спальни, кабинет и мастер спальня со своим санузлом и гардеробной.

О проекте

  • Площадь - 238м2
  • Количество комнат - 5 комнат
  • Этажность - 1 этаж

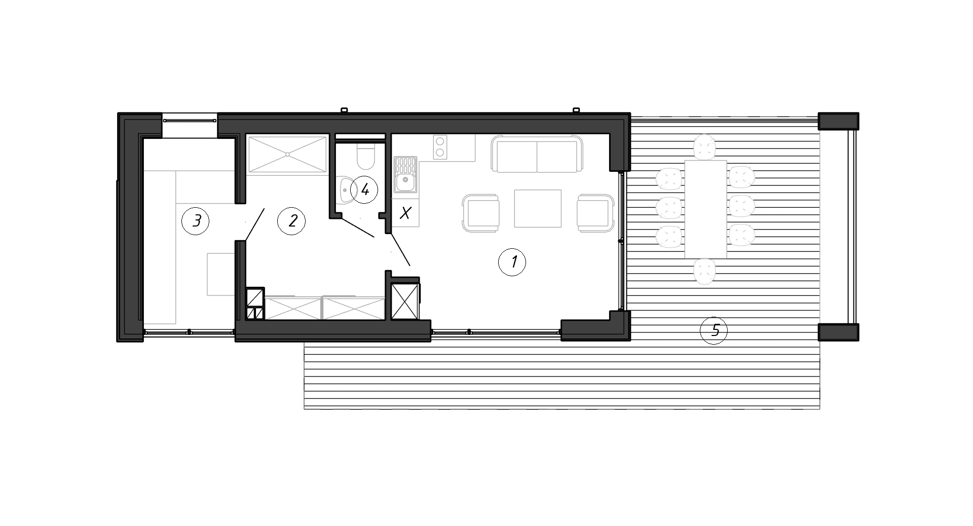
Планировка

1 этаж
-

1. Прихожая- 9.8м2

2. Гардеробная- 7.1м2

3. Котельная/ постирочная- 9.8м2

4. Гараж- 32.9м2

5. Санузел- 3.9м2

6. Кладовая- 3.2м2

7. Спальня- 10.2м2

8. Санузел- 6.0м2

9. Спальня- 12.1м2

10. Спальня- 12.1м2

11. Санузел- 7.5м2

12. Мастер-спальня- 22.0м2

13. Гардеробная- 5.3м2

14. Кухня-гостиная- 50.1м2

15. Коридор- 18.5м2

16. Терраса- 11.2м2

Итого:- 221.7м2

SPA-комплекс
+

Дизайн

Дизайн-проект DS238&SPA

Похожие решения.

Загородный дом Hi217 ind.
217m2, 5 комнат, 1 этаж
Загородный дом Hi203
203m2, 5 комнат, 1 этаж
Загородный дом HiI230
230m2, 5 комнат, 1 этаж
Загородный дом Hi226 ind.
226m2, 4 комнаты, 1 этаж