Загородный дом Hi212

Проект загородного дома Hi212 — 212 м², с терассой

Архитектура

Проект двухэтажного дома в брутальном черном цвете для истинных ценителей минимализма! Простые геометрические формы с черной штукатуркой смягчаются вставками из реечных панелей шоколадного оттенка.

О проекте

  • Площадь - 212м2
  • Количество комнат - 5 комнат
  • Этажность - 2 этажа

Особое внимание уделено компоновке пространства: на первом этаже расположены большая кухня-гостиная с окнами в пол и выходом на террасу, а также жилой блок с двумя спальнями и кабинетом.

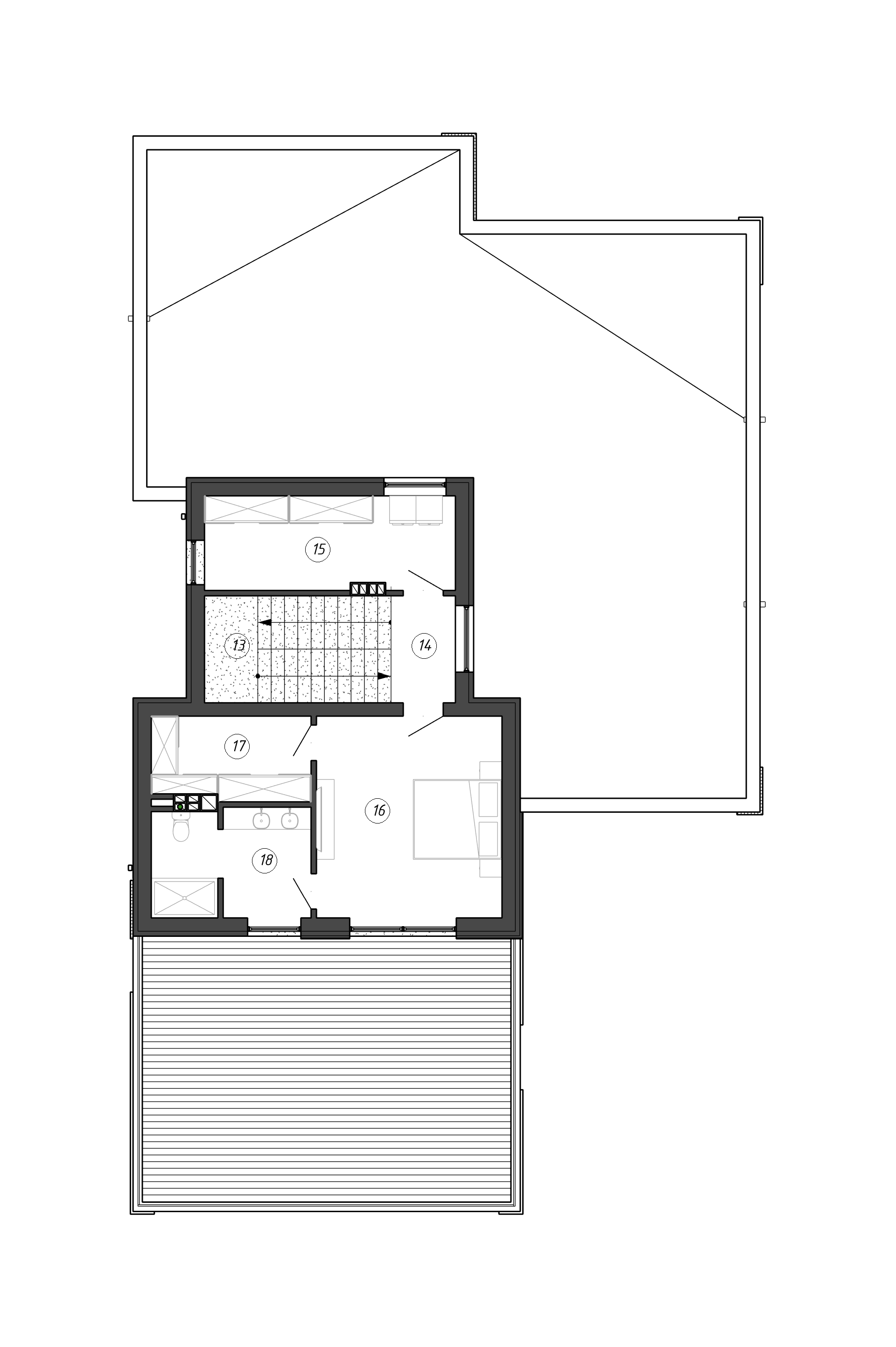
Второй этаж - это уединения часть дома, включающая большую мастер спальню со своим гардеробом, санузлом и выходом на террасу а так же отдельно стоящую постирочную.

Планировка

1 этаж
-

1. Прихожая- 6.8м2

2. Гардеробная- 7.3м2

3. Котельная- 5.9м2

4. Коридор- 18.1м2

5. Кухня-гостиная- 48.1м2

6. Лестница- 5.0м2

7. Санузел- 8.7м2

8. Гостевая спальня- 14.4м2

9. Кабинет- 12.8м2

10. Спальня- 11.8м2

11. Хоз. постройка- 12.8м2

12. Терраса- 7.7м2

Итого:- 159.4м2

2 этаж
+

Похожие решения.

Загородный дом Hi231
231m2, 6 комнат, 2 этажа
Загородный дом Hi224&SPA.
224m2, 5 комнат, 2 этажа
Загородный дом Hi213 ind.
213m2, 3 комнаты, 2 этажа
Загородный дом Hi202
202m2, 5 комнат, 2 этажа