Спа комплекс Hi117 ind

Проект SPA-комплекса Hi117 ind — Москва

Архитектура

В этом проекте загородного комплекса на участке рядом с жилым домом размещен спа комплекс. В его состав входит кухня, гостиная с панорамным остеклением, релакс зона и комплекс помещений парной. В наружной отделке используется сочетание клинкерной плитки, клинкерного кирпича и штукатурки, за счёт чего формируется пластика на фасадах.

О проекте

  • Площадь - 117м2
  • Количество комнат - 1 комната
  • Этажность - 1 этаж

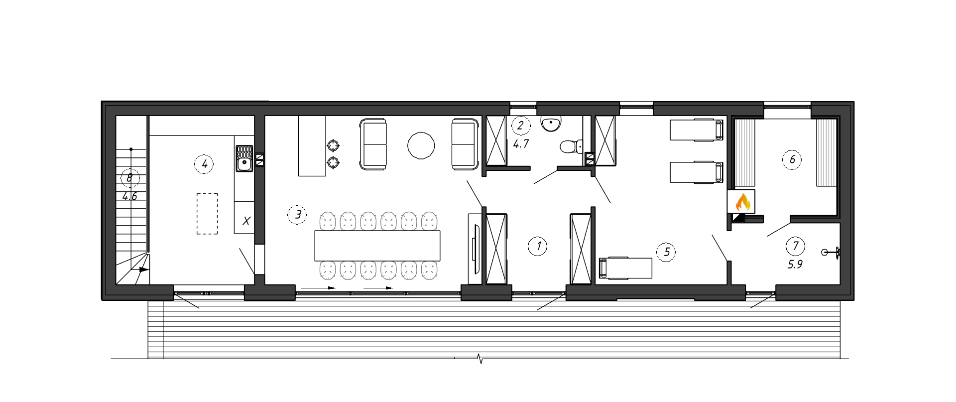
Планировка

1 этаж
-

1. Прихожая- 10.5м2

2. Туалет- 4.7м2

3. Беседка- 32.2м2

4. Кухня- 15.9м2

5. Релакс зона- 19.5м2

6. Парная- 8.6м2

7. Душевая- 5.9м2

8. Лестница- 4.6м2

Итого:- 101.9м2

Подвальный этаж
+

Дизайн

Дизайн-проект DS256 ind.

Похожие решения.

Загородный дом Hi165
165m2, 3 комнаты, 1 этаж