Загородный дом Hi165

Проект загородного дома Hi165 — 165 м², с террасой, 1 этаж

Архитектура

Дом на склоне всегда смотрится интересно, но добавляя консольный навес и террасу со свесами мы получаем невероятную динамику на фасаде! Максимальное видовое раскрытие на внутренний двор подчеркивается высокими панорамными окнами со структурными углами. Хоз.постройка соединена с домом навесом, который формирует въездную группу и визуально удлиняет фасад. Основная площадь дома отдана кухне-гостиной и блоку мастер спальни.

О проекте

  • Площадь - 165м2
  • Количество комнат - 3 комнаты
  • Этажность - 1 этаж

Планировка

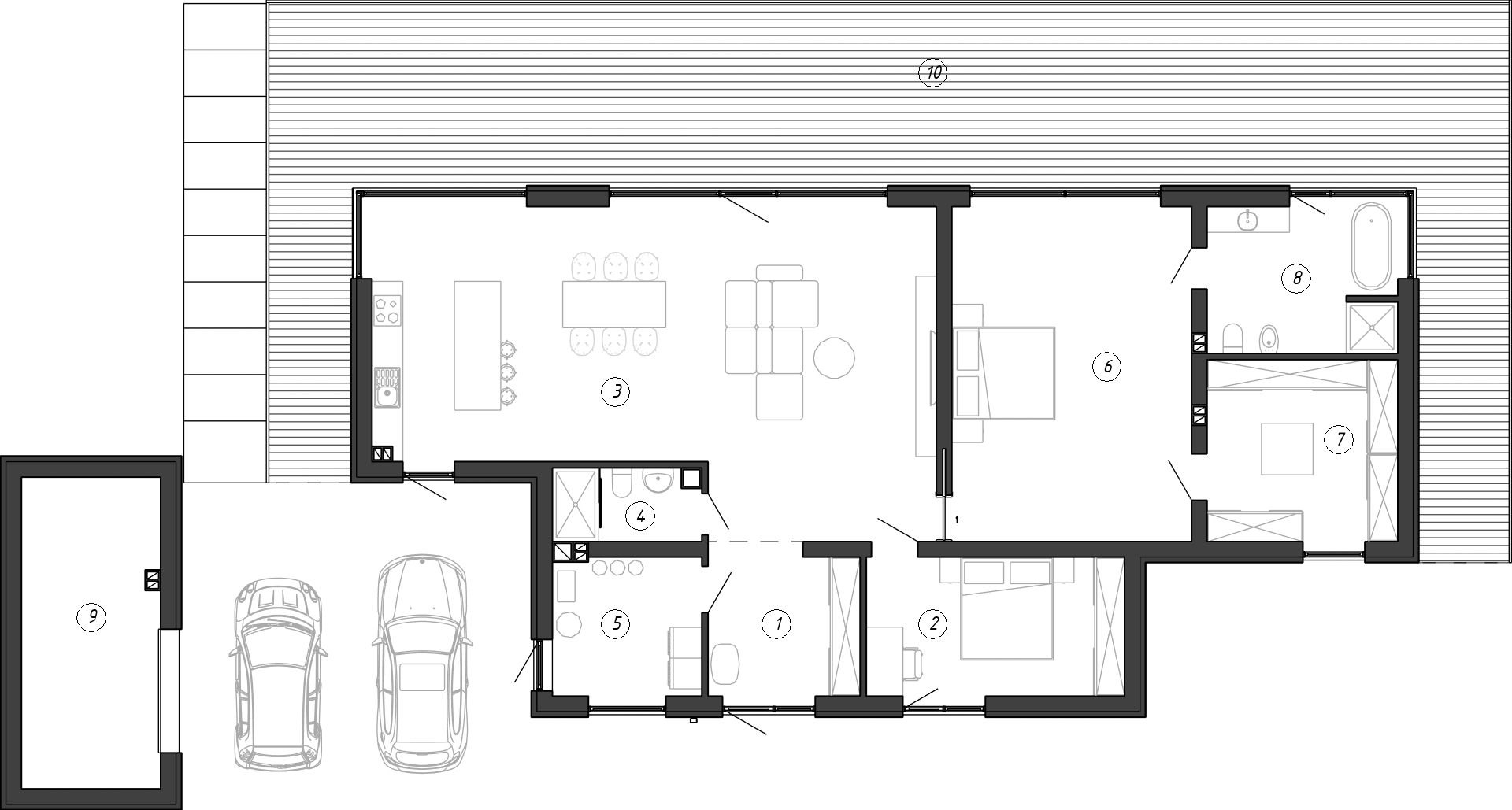
1 этаж
-

1. Прихожая- 8.5м2

2. Спальня- 13.5м2

3. Кухня-гостиная- 61.1м2

4. Санузел- 4.1м2

5. Топочная- 7.8м2

6. Мастер-спальня- 30.2м2

7. Гардеробная- 13.1м2

8. Санузел- 10.5м2

9. Хоз. помещение- 16.3м2

10. Терраса- 33.8м2

Итого:- 198.9м2

Похожие решения.

Загородный дом Hi203&SPA
203m2, 4 комнаты, 1 этаж
Загородный дом Hi182 ind.
182m2, 5 комнат, 1 этаж
Загородный дом Ні164
164m2, 4 комнаты, 1 этаж
Загородный дом Hi156
156m2, 4 комнаты, 1 этаж