Загородный дом Hi375

Проект загородного дома Hi375 — 375 м², бассейн, СПА

Архитектура

О проекте

  • Площадь - 375м2
  • Количество комнат - 7 комнат
  • Этажность - 3 этажа

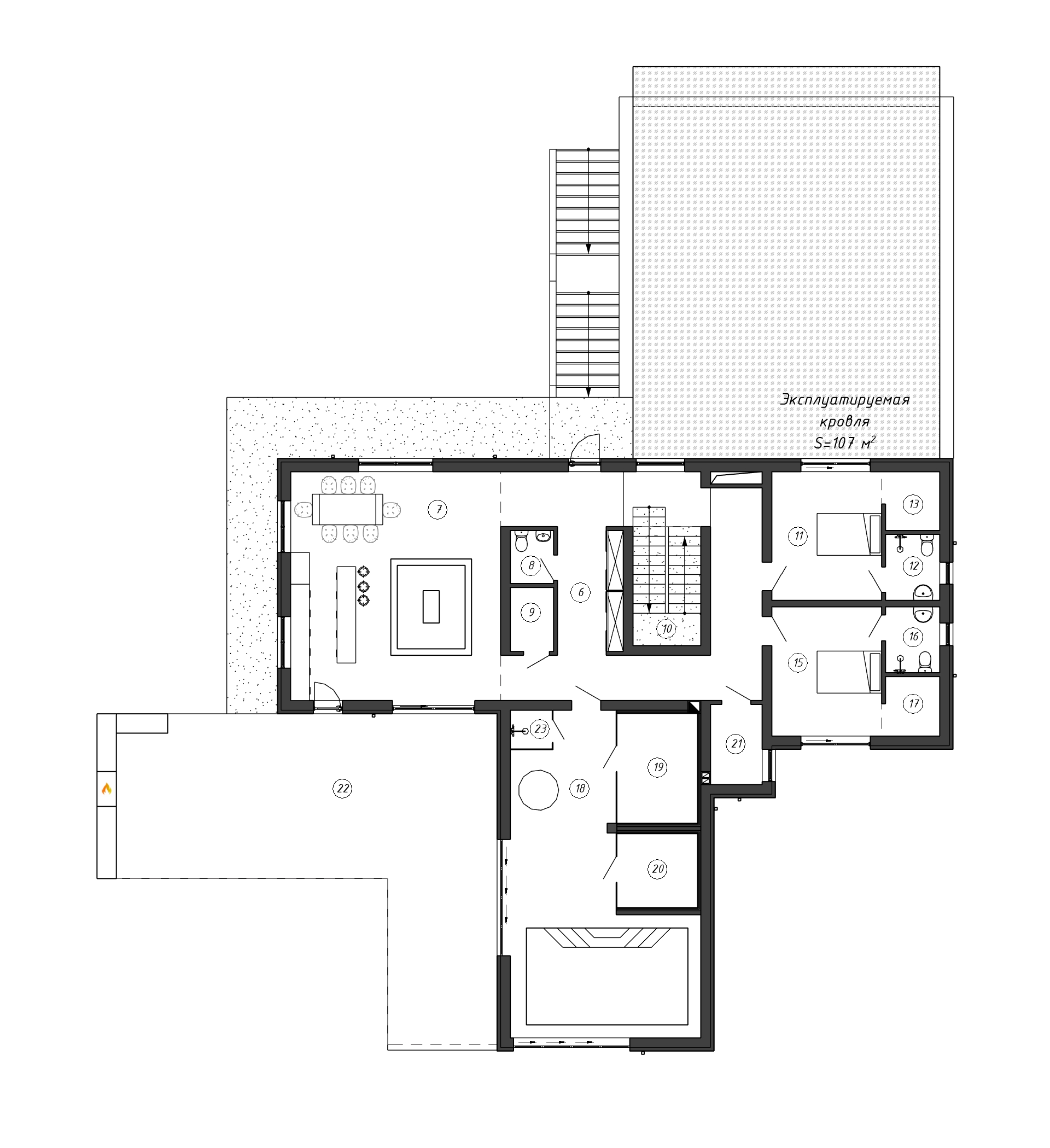
Планировка

Цокольный этаж
-

1. Гараж- 48.0м2

2. Кладовая- 11.8м2

3. Котельная- 6.3м2

4. Коридор- 20.3м2

5. Лестница- 11.3м2

Итого:- 97.7м2

1 этаж
+
2 этаж
+

Дизайн

Дизайн-проект DS375ind.