Загородный дом Hi374 ind.

Загородный дом Hi374 ind — 374 м², 2 этажа, 7 комнат, Москва

Архитектура

Двухэтажный дом в стиле Райт с навесом на 2 автомобиля и СПА блоком можно считать классикой в мире премиального загородного жилья. Он хорошо смотрится в любом окружении и с различной конфигурацией размещения на участке.

О проекте

  • Площадь - 374м2
  • Количество комнат - 7 комнат
  • Этажность - 2 этажа

Двухэтажный объем переходит в одноэтажную часть блока СПА через навес, под которым организована терраса с выходом из столовой.

Второй свет на два этажа в гостиной с характерным угловым остеклением позволяем максимально раскрыть вид на внутренний двор.

В отделке фасадов использован керамогранит и декоративные реечные панели из ДПК.

Строим прямо сейчас

Конструкция вентилируемых фасадов позволила скрыть все водосточные трубы за отделкой.

В планировке основную площадь занимает кухня-гостиная с открытой парящей лестницей, которая стала акцентом интерьера.

Основные жилые помещения размещены на втором этаже, из них две спальни с гардеробными, кабинет и мастер блок, а так же на первом этаже есть гостевая спальня.

Планировка

1 этаж
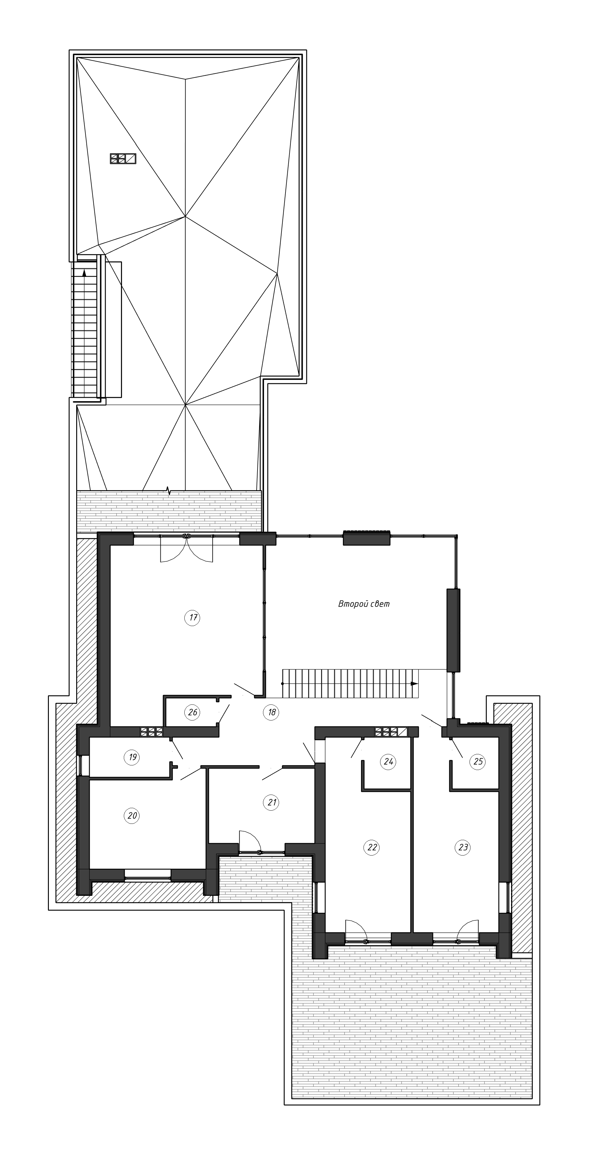
-

1. Комната отдыха- 17.1м2

2. Тамбур- 3.8м2

3. Тренажерная- 25.8м2

4. Санузел- 1.4м2

5. Раздевалка- 4.5м2

6. Душевая- 5.0м2

7. Хамам- 5.8м2

8. Гостиная- 61.8м2

9. Кладовая- 8.2м2

10. Гардеробная- 11.0м2

11. Гостевая комната- 13.1м2

12. Гараж- 40.2м2

13. Гостевой санузел- 3.7м2

14. Котельная- 5.3м2

15. Кухня- 20.6м2

16. Вестибюль- 16.7м2

Итого:- 244м2

2 этаж
+

Похожие решения.

Загородный дом Hi405
405m2, 8 комнат, 2 этажа
Загородный дом Hi412&SPA
412m2, 6 комнат, 2 этажа
Загородный дом Hi370
370m2, 7 комнат, 2 этажа