Апарт-отель PANDAI

Apartotel Pandai — современный апарт-отель

Архитектура

Проект реконструкции отеля на острове Бали включал в себя несколько этапов: создание концепции, разработка типологии номеров и общественных пространств, формирование внешней композиции и проработка деталей экстерьера. В результате было достроено два этажа, увеличено количество номеров до 42, в комплексе размещены ресторан, кафе, бассейн, коворкинг, комната для подкастов, две зеленые кровли с зонами отдыха, и площадка BBQ. В отделке фасадов преобладает декоративная штукатурка в сочетании с латунными панелями и рейками, а так же активно применяется вертикальное озеленение.

О проекте

  • Площадь - 1933м2
  • Количество комнат - 42 комнат
  • Этажность - 4 этажа

Фасады

Планировка

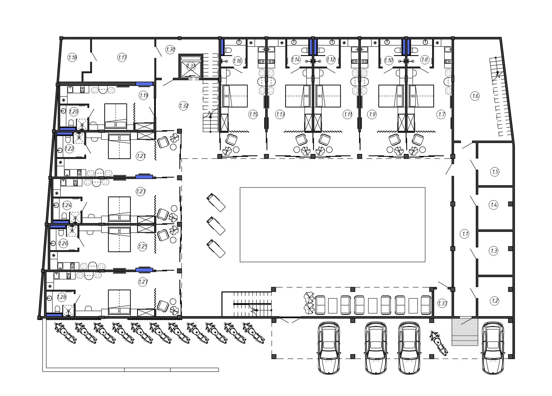
1 этаж
-

1. Коридор для подсобных помещений- 25.1м2

2. Помещение генераторной- 8.8м2

3. Кладовая для грязного белья- 9.7м2

4. Кладовая для чистого белья- 9.4м2

5. Кухонная кладовая- 9.7м2

6. Кухня- 34.4м2

7. Номер (комната)- 28.9м2

8. Санузел- 4.2м2

9. Номер (комната)- 29.0м2

10. Санузел- 4.2м2

11. Номер (комната)- 29.0м2

12. Санузел- 4.2м2

13. Номер (комната)- 29.0м2

14. Санузел- 4.2м2

15. Номер (комната)- 29.0м2

16. Санузел- 4.2м2

17. Комната уборочного инвентаря- 18.0м2

18. Служебный санузел- 7.8м2

19. Номер (комната)- 22.2м2

20. Санузел- 4.1м2

21. Номер (комната)- 30.9м2

22. Санузел- 4.2м2

23. Номер (комната)- 32.0м2

24. Санузел- 4.1м2

25. Номер (комната)- 32.9м2

26. Санузел- 4.2м2

27. Номер (комната)- 33.9м2

28. Санузел- 4.1м2

29. Кладовая- 12.1м2

30. Лифт- 3.0м2

31. Входная галерея- 27.5м2

32. Санузел- 3.2м2

Итого:- 507.2м2

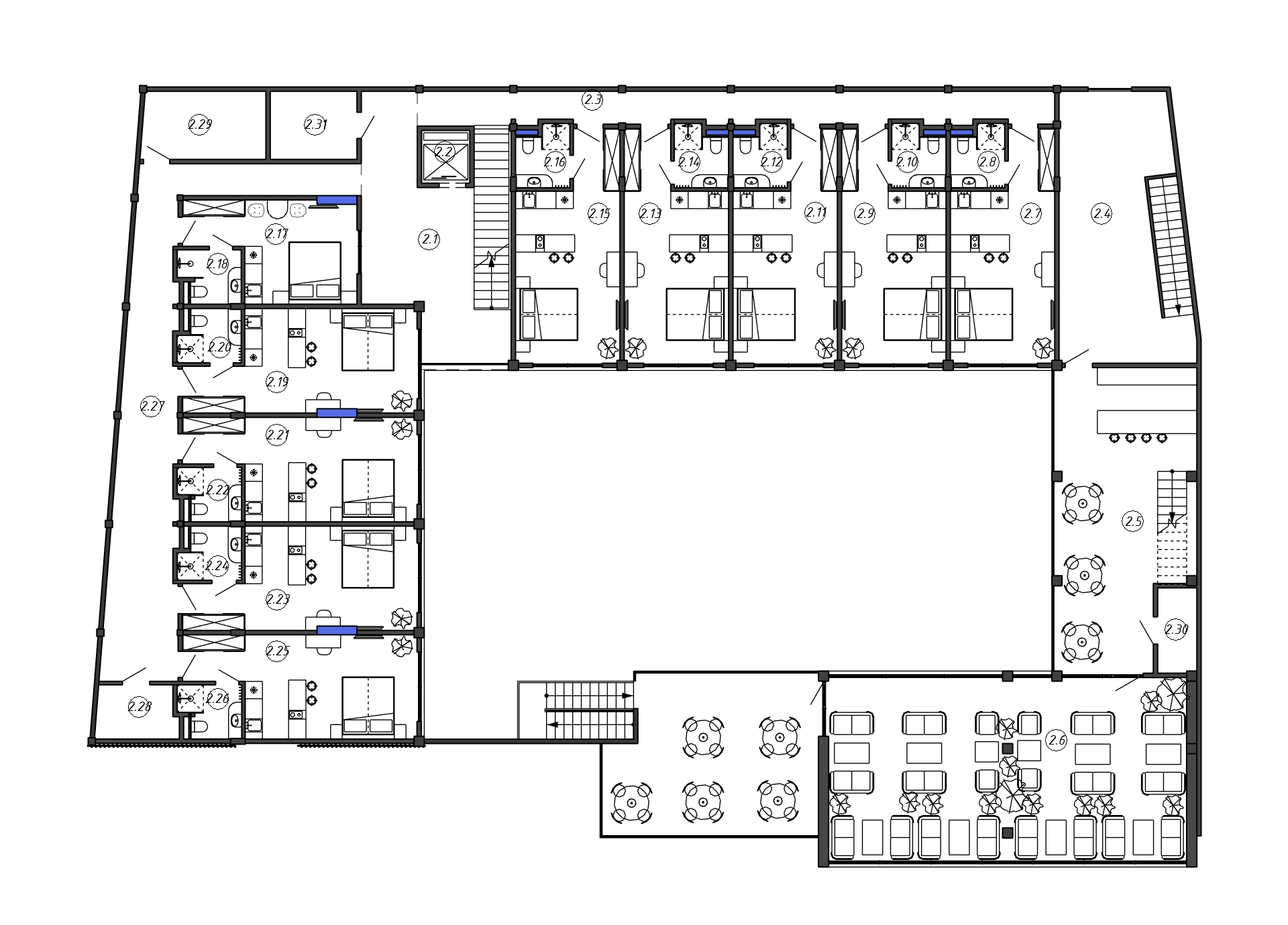
2 этаж
+
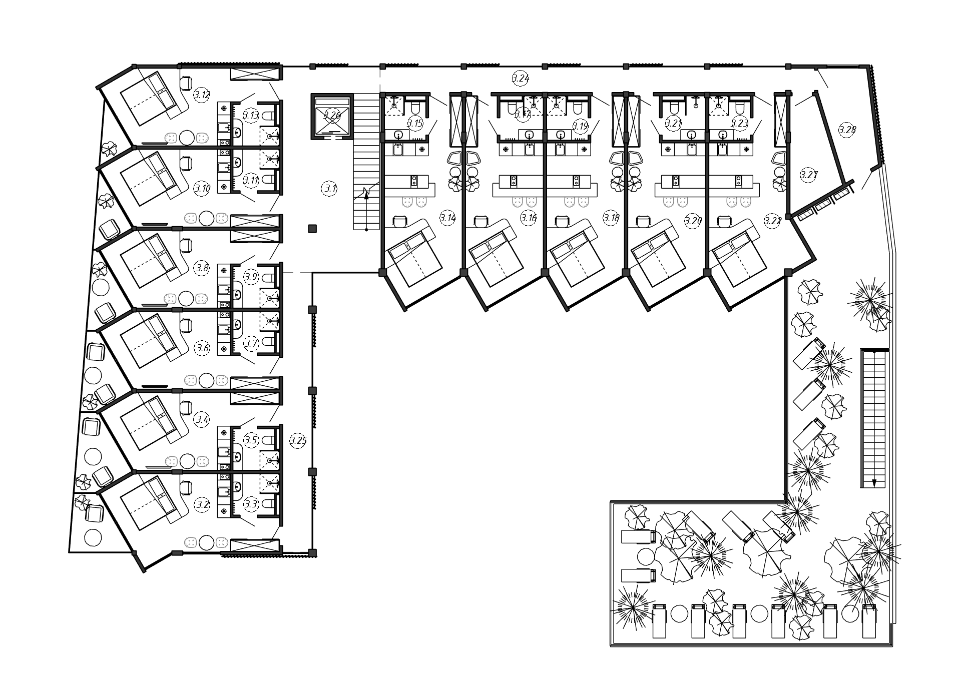
3 этаж
+
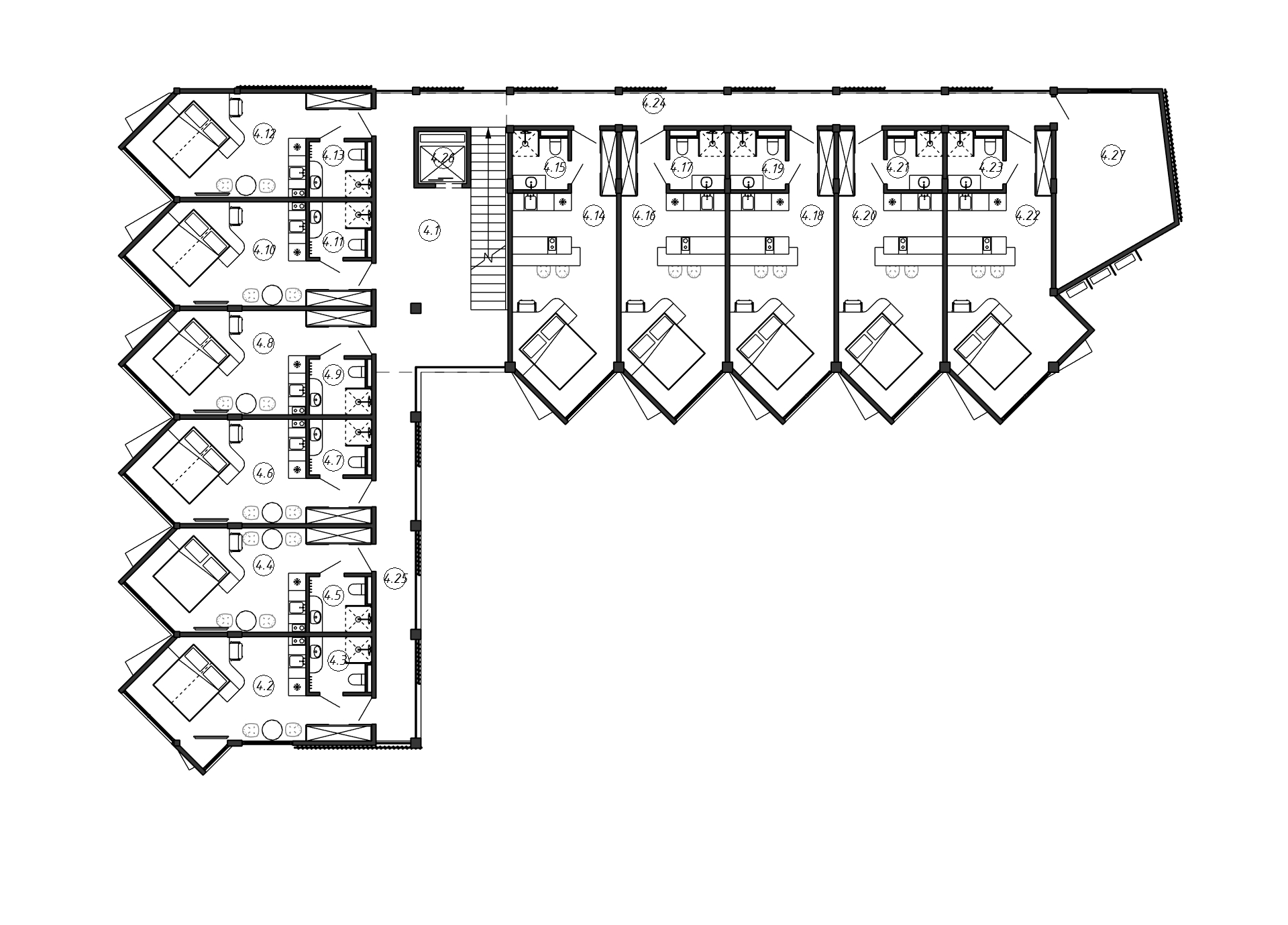
4 этаж
+